Jump to content


Photo

Help with Complex Roof (Hip/Gable Combo + Porch Shed Roof)

roof

  • Please log in to reply
13 replies to this topic

#1 Thomas Mitchell

Thomas Mitchell

    Newbie

  • Members
  • Pip
  • 5 posts

Posted 23 October 2025 - 11:40 AM

Hi all,

I’m using SoftPlan 2026 and trying to draw a roof like the one in the attached images. It has a mix of hips and gables, plus a shed roof over the front porch that ties into the main roof.

Here’s what I’ve run into:

  1. One-piece roof: I can’t get the hips and gables to show where needed — especially along a wall where I need part gable and part hip. i have tried the slight offset to trick the software into creating two segments that are treated differently and that isn't rendering or displaying for me either. I also can’t get the hip from the front  gable to extend over the shed porch roof like it does in real life and in the complete drawing i am basing this off of.

  2. Separate roofs with Auto Hole: This is what I’ve shown in the screenshot. It gets closer, but I’m left with extra linework, and the porch shed roof doesn’t cleanly tie into the main roof geometry.

How should i proceed trying to recreate this?

 

Screenshot 2025-10-23 121846.png

Screenshot 2025-10-23 125155.png



#2 Jason Bloomingdale

Jason Bloomingdale

    Advanced Member

  • Members
  • PipPipPip
  • 210 posts

Posted 23 October 2025 - 12:11 PM

Hey Thomas, are you struggling with the bottom right corner gable, as it appears on your drawings, or are you referring to up where the dormer connects? It looks, from your description, like for the porch roof, you want a double hip with the lower pitch being the 4:12 for whatever the distance of that porch roof is that you have on the second drawing, then the 8:12 upper pitch.



#3 Jason Bloomingdale

Jason Bloomingdale

    Advanced Member

  • Members
  • PipPipPip
  • 210 posts

Posted 23 October 2025 - 12:30 PM

Here's a screenshot of a quick and dirty version that I made just tracing over your first version. The trick for yours is going to be that your main ridge will largely be made of false gables, then do the double hip thing like I mentioned in the last comment.

 

You can auto hole the main roof once you have your distances correct, which will be defined by what would have been your reference point for the main eave end if the porch roof wasn't there.

 

Second picture is a cleaned up version where I just changed the color of the false gables to match the color of the main roof so it doesn't look as busy.

Attached Thumbnails

  • SP Roof Help.png
  • SP Roof Help 2.png


#4 Thomas Mitchell

Thomas Mitchell

    Newbie

  • Members
  • Pip
  • 5 posts

Posted 23 October 2025 - 01:58 PM

Thanks for the help! I was able to replicate your drawing drawing and it renders correctly in 3D.

However, I’m still running into a couple of issues the left side of the roof and the plan view/elevations:

  • I need to remove the false gable lines and fix the ridge vent lines from both the roof plan views and elevation views for my plan set. What’s the best way to hide or clean those up?

  • The left side of the roof sits higher since it’s over a bonus room above garage on exterior knee walls. How can I correctly raise just that part of the roof to sit on top of the bonus room creating the overlap with the lower slope portion of the roof over the porch. picture attached Screenshot 2025-10-23 121846.png



#5 Jason Bloomingdale

Jason Bloomingdale

    Advanced Member

  • Members
  • PipPipPip
  • 210 posts

Posted 23 October 2025 - 02:29 PM

Ahhh, I didn't catch the porch roof was underneath the left gable...I think you're going to have to make separate roofs to make everything look like you want. It's hard to tell what the heights of the wall/beam are from the overhead view, and that's throwing me. I'm probably conceptualizing something wrong, but it seems like the wall on the left side should have two different plate heights since the left side of the 12:12 roof looks like it matches with the drip line of the rest of the roof around the way, but the porch roof looks lower. The 12:12 gable on the right side looks like it matches both the main roof AND the porch, so my math ain't mathin' somewhere. Are you able to post the Web3D of your one that's rendering correctly?

 

**Future edit. I think I see what I wasn't seeing. The front left gable has either higher plate heights or higher heel heights, which means it will definitely need to be its own roof. I've added a photo of a "correct" version where I made the heel heights on that left gable 48" compared to 8" everywhere else, then made each roof its own entity, if you will. The left side of the porch roof needs to be set as Intersect and choose Vertical Pitch so that it doesn't try to meet up with the taller roof, and then, if it was fighting you previously, you should be able to drag its reference point over to the wall. You could probably get away with making the main roof, the right gable, and the porch roof all one roof using the double hip strategy from before, but I haven't tried that one yet to see if it behaves.

 

After you get the roof behaving correctly in the model, your best bet is to take the roof elevation, save it as a SoftPlan Drawing (choose the Top Elevation, then File>Save>Save As, and then Softplan Drawing is usually the default type) Then you can add and subtract lines to your heart's content to make things look like they want to look for your client.

Attached Thumbnails

  • SP Roof Help 3.png

  • Thomas Mitchell likes this

#6 Keith Almond

Keith Almond

    Advanced Member

  • Members
  • PipPipPip
  • 5,406 posts
  • LocationBrockville, Ontario, Canada

Posted 23 October 2025 - 02:53 PM

Separate roofs with Auto Hole: This is what I’ve shown in the screenshot. It gets closer, but I’m left with extra linework, and the porch shed roof doesn’t cleanly tie into the main roof geometry.

 

Separate roofs are the way to go, I don't think it's possible to do it with one roof.

 

At first glance, the shed roof doesn't tie in  properly, because it's not deep enough, it needs to extend further up, until the 2 valleys on the left intersect.


Keith

There are 10 types of people in this world ....... Those who understand binary, and those who don't.

Softplan user since version 5.5.2.5

www.homehardwarekingston.ca

#7 Thomas Mitchell

Thomas Mitchell

    Newbie

  • Members
  • Pip
  • 5 posts

Posted 23 October 2025 - 09:30 PM

This has been tremendously helpful — I’ve been stuck on this roof for the better part of three days, and I think I’m finally getting close. I believe I now have all the individual roof entities drawn correctly, but I’m running into a few quirks:

  • The left side gable is floating above the main roof instead of tying in properly. i tried adjusting with heel height but there is no entry in the heel height box and when i add one it renders several feet from the correct height.

  • auto hole doesn’t seem to be working cleanly — I can’t get it to correctly cut the intersections between the right side gable and the porch roof, or between the or between the main roof and left side gable. i was able to manually trace the hole for the main roof and right side gable but it isn't cooperating with the others.

I’ve attached screenshots showing the current state. Does anything stand out in these images that could be causing these problems

 

Screenshot 2025-10-23 231736.png

Screenshot 2025-10-23 230826.png

Screenshot 2025-10-23 231013.png

Screenshot 2025-10-23 232000.png


  • Wesley Penner and Jason Bloomingdale like this

#8 Jason Bloomingdale

Jason Bloomingdale

    Advanced Member

  • Members
  • PipPipPip
  • 210 posts

Posted 24 October 2025 - 05:30 AM

Hey Thomas,

 

Here's a few things that I'd look at adjusting on your roof to make things behave the way you want.

  1. Your dormer will be a lot cleaner in the way it behaves if you draw the roof on the 2nd floor with "Multiple Floor Roof" enabled. That way your reference points will all play more nicely together.
  2. For your porch roof, it looks like your back and right reference points are attached to the walls nearest them. If you drag those reference points to the nearby rooflines (making sure the porch roof edges in question are set to Intersect/Auto Pitch), you'll get rid of that 90 degree corner where the porch roof and right gable interact and auto hole will work better for the places where you're using it.
  3. Looking at your left gable that's not intersecting the way that you wanted, I think it's just the hole that you're missing. Rather than use Auto Hole, you might need to just use Draw>Hole>Trace Hole, select the main roof, (I make sure I've got snapping enabled when I do this. F11 is its toggle, if that's helpful) then trace the hole starting at the highest point where they intersect, press F12 twice to free up your angles, go down the left side of the valley until you hit the point where the valley crosses over the wall, click to set that point, press F12 again to lock into 90 degree lines, go straight down (IMPORTANT: Don't go all the way to the edges of the roof. You'll adjust this later, but keeping it inside the edges keeps SP from creating new roof edges that will be annoying later) set your hole to follow the square edges along the front (still avoiding the main roof edges), going back up to the valley, pressing F12 twice, and connecting it back up to the beginning point. Then adjust the three hole edges at the front to meet the main roof edges.
    1. Alternately, depending on how it's being built and what you want SP to do, you can leave the wall heights level for that section and make the adjustment using only the heel height of the higher roof - then you'll just have to adjust the left side of the hole to cover the left overhang of the main roof. This is by far the easier of the two options, as evidenced by the much shorter set of instructions.

Hopefully that's helpful, and you get your roof playing well with others!!



#9 Keith Almond

Keith Almond

    Advanced Member

  • Members
  • PipPipPip
  • 5,406 posts
  • LocationBrockville, Ontario, Canada

Posted 24 October 2025 - 06:33 AM

The left side gable being higher definitely looks like a wall height issue.

 

TIP: Enable PLATE HEIGHT in ROOF MODE VISIBILITIES ... it's very helpful in checking actual alignment.

 

2025.10.24-8h31m41s.png


Keith

There are 10 types of people in this world ....... Those who understand binary, and those who don't.

Softplan user since version 5.5.2.5

www.homehardwarekingston.ca

#10 Mark Petri

Mark Petri

    Advanced Member

  • Members
  • PipPipPip
  • 1,973 posts
  • LocationEvergreen, CO

Posted 24 October 2025 - 08:07 AM

I use reference beams and set them at the correct wall plate height and then uncheck extract in 3D and check hidden. I would set them for the main gable to reference outside the intersecting gables. Then make the gable overhangs of the main gable just a little bit more (even 1/4" works sometimes) than the neighboring eave of the intersecting gables. If you have the front porch beam height and the shed roof pitch and length correct you could use a double hip for that roof plane, and possibly get all but the upper dormer shed roof to be 1 roof. Like Jason and Keith say, it may be better as separate roofs depending on how it will be framed and the reality of that assembly. If all one and trusses, the trusses will follow every roof plane in the 1 roof system. If broken up, trusses will break up at the different roofs. If stick framed, the rafters of the intersecting roof will fill in over the other where the gables fall over the main roof. If all meant to be open and framed with valley rafters, creating it as one roof is best.


Mark Petri

Petri Building and Design

 


#11 Richard Rubinski

Richard Rubinski

    Advanced Member

  • Members
  • PipPipPip
  • 726 posts
  • LocationWarner Robins, GA.

Posted 24 October 2025 - 08:40 AM

I used a hole on the left side to cut the soffit.

Attached Thumbnails

  • Donald Roof.png
  • Donald Left Side.png


#12 Keith Almond

Keith Almond

    Advanced Member

  • Members
  • PipPipPip
  • 5,406 posts
  • LocationBrockville, Ontario, Canada

Posted 24 October 2025 - 09:50 AM

I prefer to do the whole thing as one roof, but there have been a number of instances where getting it to work was almost impossible and technical support have told me to use multiple roofs.


Keith

There are 10 types of people in this world ....... Those who understand binary, and those who don't.

Softplan user since version 5.5.2.5

www.homehardwarekingston.ca

#13 Fred Russell

Fred Russell

    Advanced Member

  • Members
  • PipPipPip
  • 818 posts

Posted 26 October 2025 - 07:20 PM

For how this might help someone, I found with roofs about 20 years ago, I struggled and then I asked a softplan tech, he said just adjust the the other one out of the way, work the roof and then adjust the other roof back.

That made roofs easier,     Now with locking things, that is good



#14 Thomas Mitchell

Thomas Mitchell

    Newbie

  • Members
  • Pip
  • 5 posts

Posted 29 October 2025 - 09:40 AM

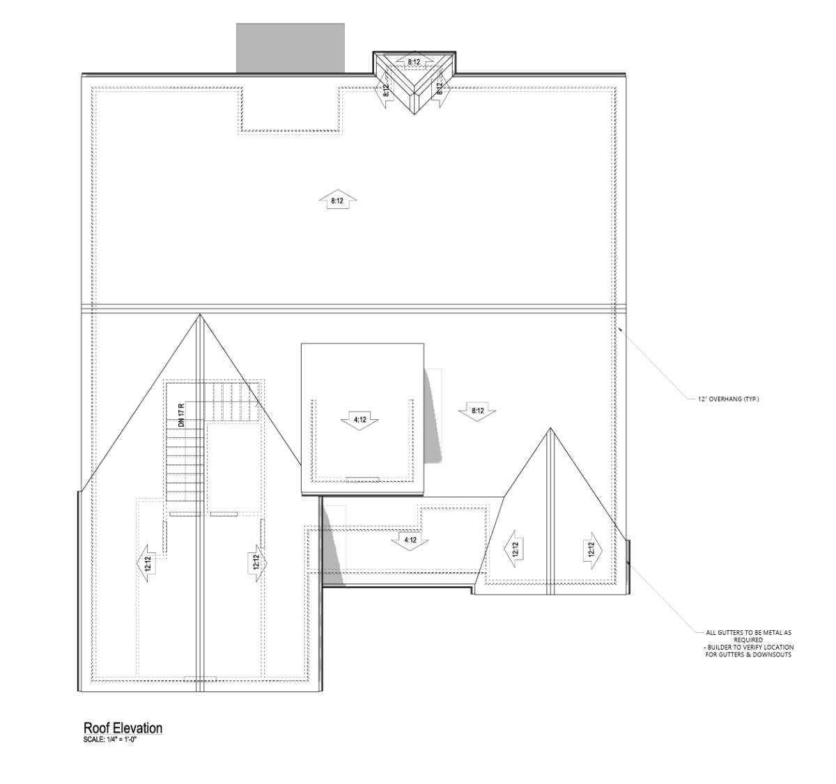
Thanks for all the advice and tips. I ended up drawing it as multiple roofs and cutting the holes manually. To get it to display correctly in plan view, I saved the top elevation view as a drawing and fine-tuned it by deleting the extra lines then overlaying on plan set page over top of exterior walls. Only remaining problem was some overlapping roof slope labels so i just drew them manually.

 

Screenshot 2025-10-29 113634.png

 


  • Jason Bloomingdale likes this





Also tagged with one or more of these keywords: roof

0 user(s) are reading this topic

0 members, 0 guests, 0 anonymous users